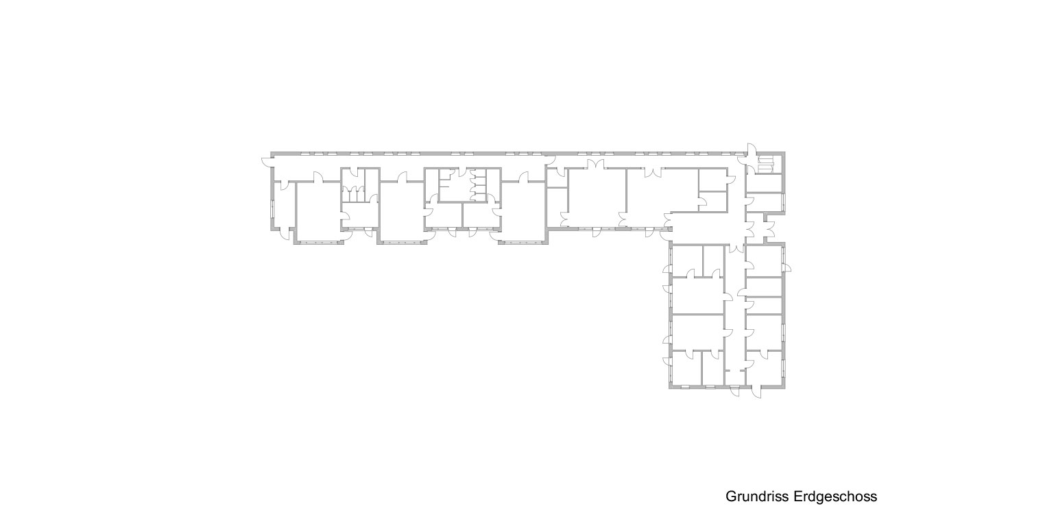
Kinderhaus in Schierling
Neubau eines Kinderhauses in Schierling
Leistungsphasen nach HOAI 1–9
7917,59 m3 umbauter Raum | 2580,58 m2 Bruttogrundstücksfläche | 1114,21 m2 Hauptnutzfläche | Ausführungszeitraum: ab 2023
Leistungsphasen nach HOAI 1–9
7917,59 m3 umbauter Raum | 2580,58 m2 Bruttogrundstücksfläche | 1114,21 m2 Hauptnutzfläche | Ausführungszeitraum: ab 2023